P R O P E R T I E S

Amstelhof

bv

Geschiedenis van het Amstelhof

 

Het Amstelhof bestaat uit woningen in Amsterdam-Zuid die gebouwd zijn in de beginjaren 50 van de vorige eeuw. Het complex van woningen ligt aan de President Kennedylaan, Stichtstraat,  Veluwelaan,  Montferlandstraat, Sallandstraat en de Graafschapstraat.

De ligging van het complex in Amsterdam-Zuid

Het Amstelhofcomplex is representatief voor de architectuur van de wederopbouw na de Tweede Wereldoorlog. De woonblokken zijn gebouwd volgens het Nemavo-Airey-systeem en het zijn momenteel de beste bewaard gebleven voorbeelden van de moderne en goedkope bouwmethodes die toegepast werden om de na-oorlogse woningnood te verlichten.

Gebruikmakend van het al in 1934 vastgestelde uitbreidingsplan voor Amsterdam (het UAP van Van Eesteren) wilde men in 10 jaar 50.000 woningen neerzetten. In Amsterdam-Zuid werden de woonblokken verder uit elkaar gezet dan in Noord en West, en zo ontstond een groene, open wijk: Amstelhof.

 

Het is een hoog- en laagbouwwijk, met 85 woningen per hectare. Langs de President Kennedylaan staan  twee lange woonblokken van vijf bouwlagen met 96 woningen en daarachter - haaks erop - acht kortere woonblokken van vier bouwlagen met elk 24 etagewoningen.  In totaal bestaat het complex uit 288 woningen. Ook werden er aan de Baroniestraat drie winkels en een ketelhuis en aan de President Kennedylaan - tussen de twee lange woonblokken - een benzinestation met was- en reparatie-inrichting gerealiseerd.

 

Het complex is vanaf 1999 eigendom van Amstelhof Properties bv.

 

In 2010 werd Amstelhof opgenomen in het Gemeentelijk Monumenten Project Amsterdam-Zuid, hetgeen ertoe leidde dat het complex in februari 2014 op de gemeentelijke monumentenlijst werd geplaatst. Dit betreft huizen aan de Baroniestraat, Graafschapstraat, Montferlandstraat, Kennedylaan, Sallandstraat, Stichtstraat en Veluwelaan.

 

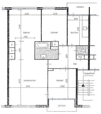
Plattegrond van een woning in de 'hoogbouw'

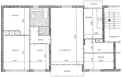
Plattegrond van een woning in de 'laagbouw'

Amstelhof Properties bv - KvK 33208036 - De Lairesse Bouwmanagement bv - KvK 34139656 - Generaal Vetterstraat 77 A, 1059 BT Amsterdam - Disclaimer